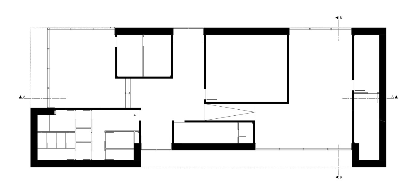
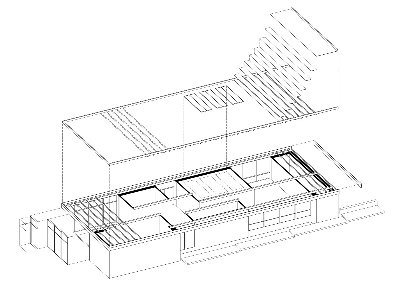
Besucherzentrum Freilichtmuseum Heuneburg
Besucherzentrum Freilichtmuseum Heuneburg
Aktuell
Projekte
Professuren
Forschung
Master
International
Architekturgespräche
Anmeldung fehlgeschlagen
Anmeldung temporär blockiert. Bitte später erneut versuchen.
Studierende
Julian Maurer
Tobias Rieger
Petra Schlenk
Lisa-Marie Werner
Projekt
Besucherzentrum Freilichtmuseum Heuneburg
Studiengang
Architektur (B.A.)
StudiengangMoreInfo
Professur
Prof. Dipl.-Ing. Benedikt Bosch
ProfessurMoreInfo
Gäste
GästeMoreInfo
Jahr
2022